For sale - Raphael - Office in Fontvieille
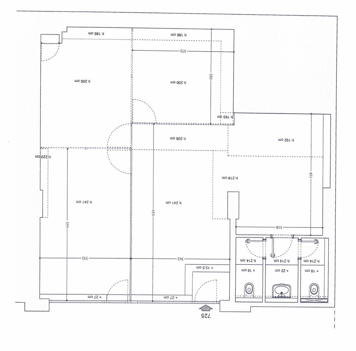
Office in a very good condition with parquet flooring, comprised of a main room, including 3 offices with partitioned windows, a kitchenette corner and a double toilet. Large shop front window.
Currently rented at €8,700/month VAT included + service charges €400/month, on a 1 year contract basis, ending September 30th, 2026.
Agency : Arcus Properties
6 Quai Jean-Charles Rey98000 Monaco
Product information request : RAPH 725-7250 +377 92 00 20 00
This document does not form part of any offer or contract. All measurements, areas and distances are approximate. The information and plans contained herein are believed to be correct, however, their accuracy is not guaranteed. The photographs show only certain parts of the property at the time they were taken. This offer is subject to change of price or other conditions, without prior notice.
Our real estate selection



Le Bermuda - Avenue Hector Otto


CARRÉ D’OR - COMMERCIAL REAL ESTATE FOR SALE


