For sale - LE MARGARET- ONE BEDROOM FOR SALE - BRAND NEW FINISHES
Stunning fully renovated one-bedroom apartment with high-end finishes, quiet setting and prime location. Bright, functional and move-in ready, just steps from beaches, shops and restaurants.
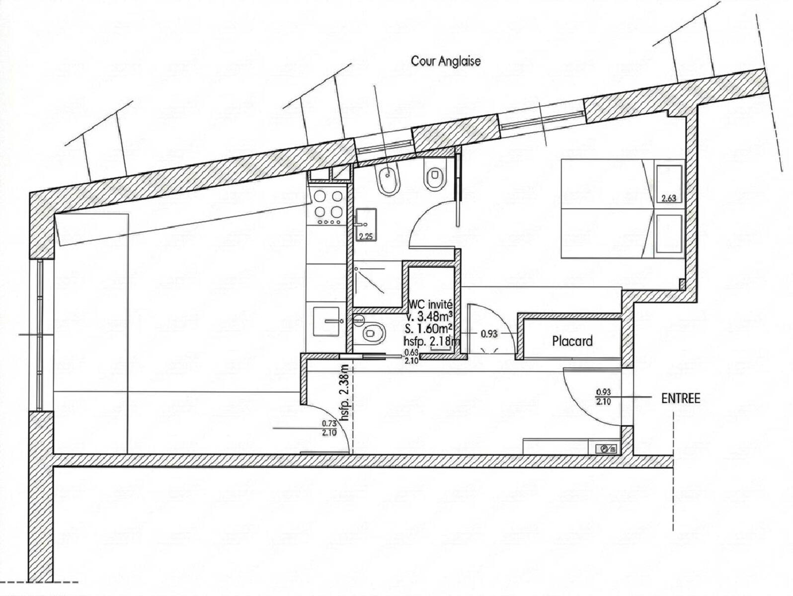
Wonderful one-bedroom apartment for sale, fully renovated, in brand-new condition, for mixed use and sold with a cellar.
The apartment offers high-end finishes and consists of an entrance hall with corridor, a bedroom (with en-suite bathroom equipped with shower, WC and bidet), a guest WC with shower, and a living room with a fully equipped open-plan kitchen. Everything is new.
The apartment offers ample storage, with the possibility to create additional space if needed. The bedroom is very generously sized.
Independent air conditioning, high-quality materials.
Quiet apartment located in a sought-after area, close to beaches, supermarkets, restaurants, and the international school.
Agency : ASTRAL PROPERTIES SAM
1 Avenue Henry Dunant98000 Monaco
This document does not form part of any offer or contract. All measurements, areas and distances are approximate. The information and plans contained herein are believed to be correct, however, their accuracy is not guaranteed. The photographs show only certain parts of the property at the time they were taken. This offer is subject to change of price or other conditions, without prior notice.






