For sale - LE MICHELANGELO - LOCAL / OFFICE
Nice local / office located in the "Le Michelangelo" building, in the Fontvieille district.
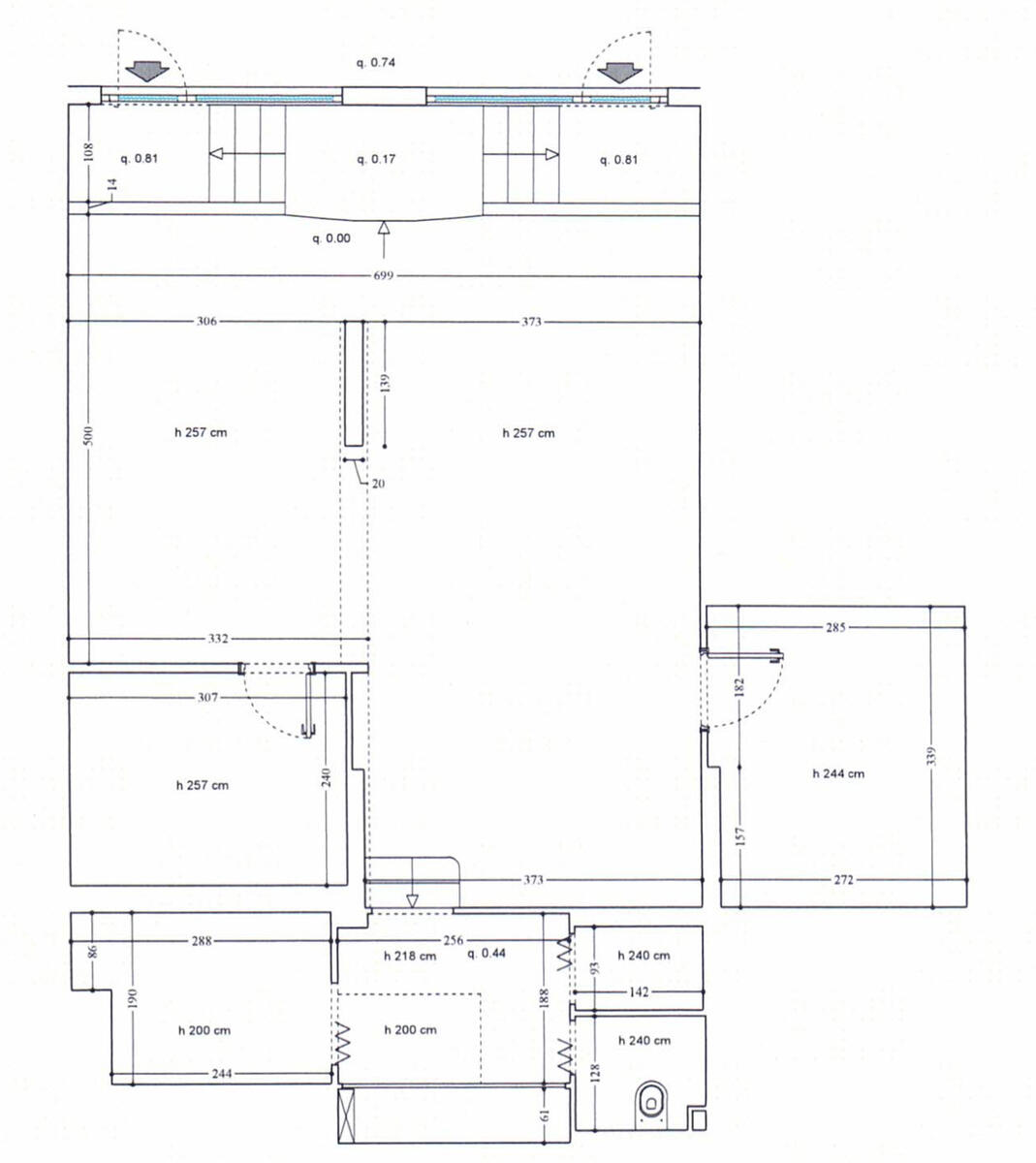
Rental room with large window and double access, bright.
Consisting of a spacious main room, 2 side rooms on each rear side, 1 laundry room, a laundry room, 1 toilet, a large storage room.
Currently rented at 4881 euros including VAT / lease 3/6/9 expiring on 30/09/2026.
Agency : Agence Nouvelle
16 Av. de la Costa98000 Monaco
This document does not form part of any offer or contract. All measurements, areas and distances are approximate. The information and plans contained herein are believed to be correct, however, their accuracy is not guaranteed. The photographs show only certain parts of the property at the time they were taken. This offer is subject to change of price or other conditions, without prior notice.
Our real estate selection

La Condamine - Villa Lavagna


CARRÉ D’OR - COMMERCIAL REAL ESTATE FOR SALE




Villa Socrate - Avenue de la Costa
