Vendita - Studio ad uso misto - Le Montaigne
Monolocale ad uso misto - Le Montaigne
Completamente ristrutturato, luminoso e raffinato
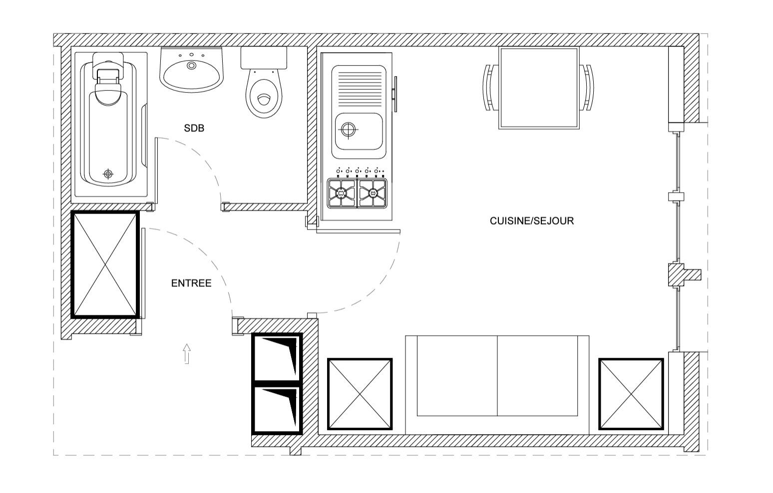
Situato al 5° piano di una prestigiosa residenza, “Le Montaigne”: un monolocale ad uso misto, come abitazione o ufficio.
Completamente ristrutturato, luminoso e raffinato - a pochi passi da Place du Casino - questo accogliente monolocale è composto da un ingresso, una stanza principale e un bagno completamente attrezzato.
Agenzia : Powers Properties
8 Avenue Saint Laurent98000 Monaco
Richiesta informazioni sul prodotto : PPMCVSH013 +377 92 05 23 23
Ce document ne fait partie d'aucune offre ou contrat. Toutes mesures, surfaces et distances sont approximatives. Le descriptif et les plans ne sont donnés qu'à titre indicatif et leur exactitude n'est pas garantie. Les photographies ne montrent que certaines parties de la propriété. L'offre est valable sauf en cas de vente, retrait de vente, changement de prix ou d'autres conditions, sans préalable.






