Vendita - Bilocale con vista mare
Bilocale molto luminoso con vista mare
Appartamento luminoso ed elegante con vista mare – Residenza Calypso
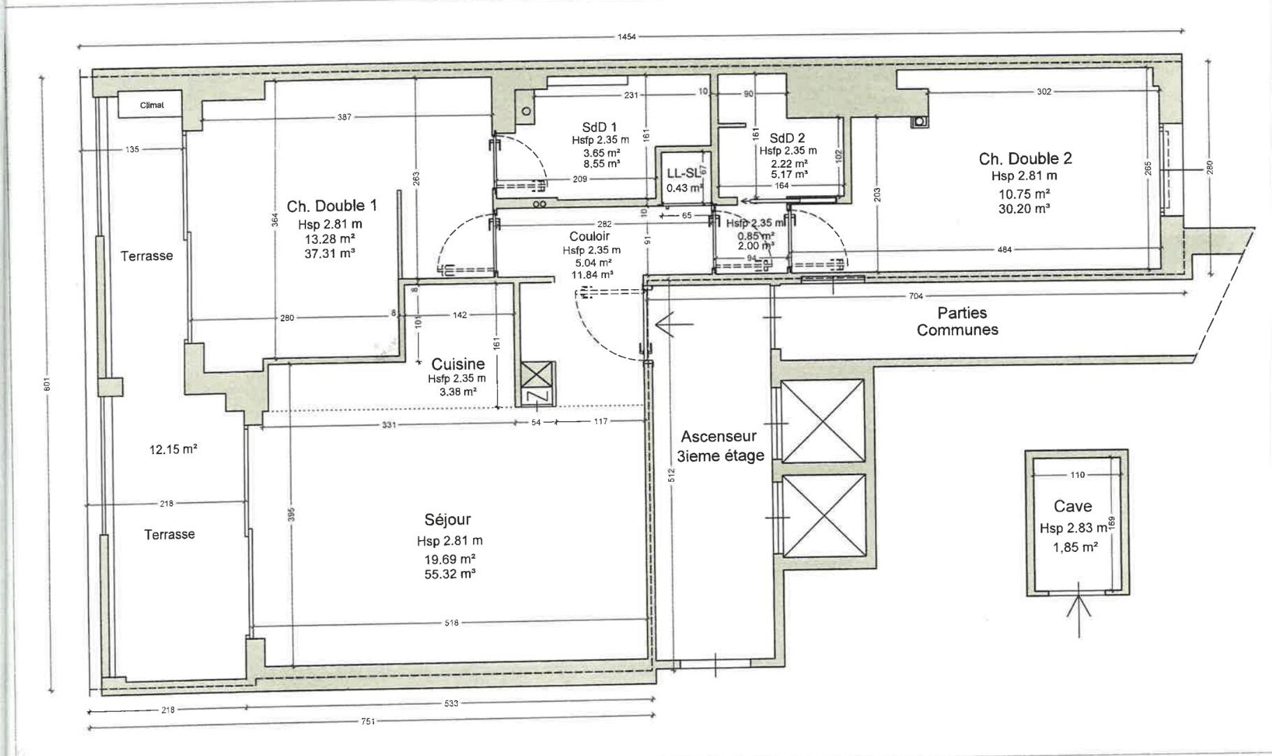
Situato nella prestigiosa residenza Calypso, questo luminoso ed elegante appartamento con due camere da letto vanta una splendida vista mare. La disposizione è studiata con cura e comprende un’ampia zona soggiorno e pranzo, una cucina completamente attrezzata, e due camere da letto, ciascuna con bagno con doccia en-suite.
Gli spazi sono ottimizzati grazie a numerose soluzioni per lo stoccaggio. Una delle camere, insieme al soggiorno, si apre su un’ampia terrazza che regala una vista mozzafiato sul mare — perfetta per momenti di relax o per intrattenere gli ospiti.
Una cantina privata aggiunge ulteriore comodità a questa proprietà d’eccezione.
Agenzia : Powers Properties
8 Avenue Saint Laurent98000 Monaco
Richiesta informazioni sul prodotto : PPMCV408 +377 92 05 23 23
Ce document ne fait partie d'aucune offre ou contrat. Toutes mesures, surfaces et distances sont approximatives. Le descriptif et les plans ne sont donnés qu'à titre indicatif et leur exactitude n'est pas garantie. Les photographies ne montrent que certaines parties de la propriété. L'offre est valable sauf en cas de vente, retrait de vente, changement de prix ou d'autres conditions, sans préalable.






