Vendita - Elegante ed eccezionale villa sulla Promenade des Anglais
Idealmente situata sulla prestigiosa Promenade des Anglais a Nizza, questa rara proprietà offre uno stile di vita eccezionale, combinando eleganza, comfort e splendide viste sul Mediterraneo.
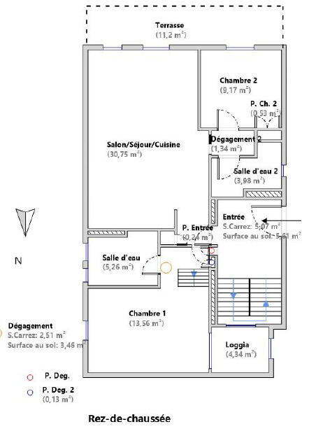
Distribuita su più livelli, la villa si distingue per i suoi ampi volumi e una disposizione armoniosa degli spazi. Le aree di rappresentanza, luminose, si aprono su ampie terrazze con vista mozzafiato. Le numerose zone giorno permettono di accogliere ospiti in un contesto raffinato, mentre le aree notte, ben separate, garantiscono privacy e tranquillità.
La proprietà dispone di diverse camere da letto, con bagni e cabine armadio, distribuite sui vari piani, offrendo un comfort ottimale per una famiglia numerosa o per ospiti.
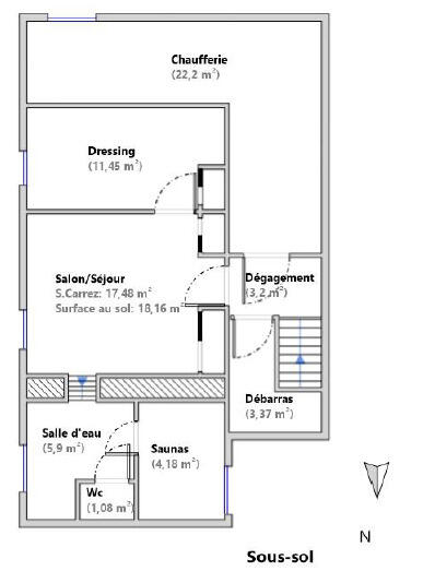
All’esterno, le terrazze e il belvedere invitano al relax in un ambiente privilegiato, completato da un piacevole giardino. I livelli inferiori includono inoltre spazi aggiuntivi come cantina, lavanderia e locali accessori, offrendo numerose possibilità di personalizzazione.
Questa proprietà unica, libera da occupazione, rappresenta una rara opportunità di acquistare una villa di carattere in una delle zone più ricercate della Costa Azzurra.
Agenzia : Monaco Properties
14, boulevard d'Italie98000 Monaco
Richiesta informazioni sul prodotto : VMO-0326-NC2 +377 97 97 33 97
Ce document ne fait partie d'aucune offre ou contrat. Toutes mesures, surfaces et distances sont approximatives. Le descriptif et les plans ne sont donnés qu'à titre indicatif et leur exactitude n'est pas garantie. Les photographies ne montrent que certaines parties de la propriété. L'offre est valable sauf en cas de vente, retrait de vente, changement de prix ou d'autres conditions, sans préalable.






