Vendita - JARDIN EXOTIQUE – LOCALE TRASFORMABILE IN APPARTAMENTO - VILLA EDELWEISS
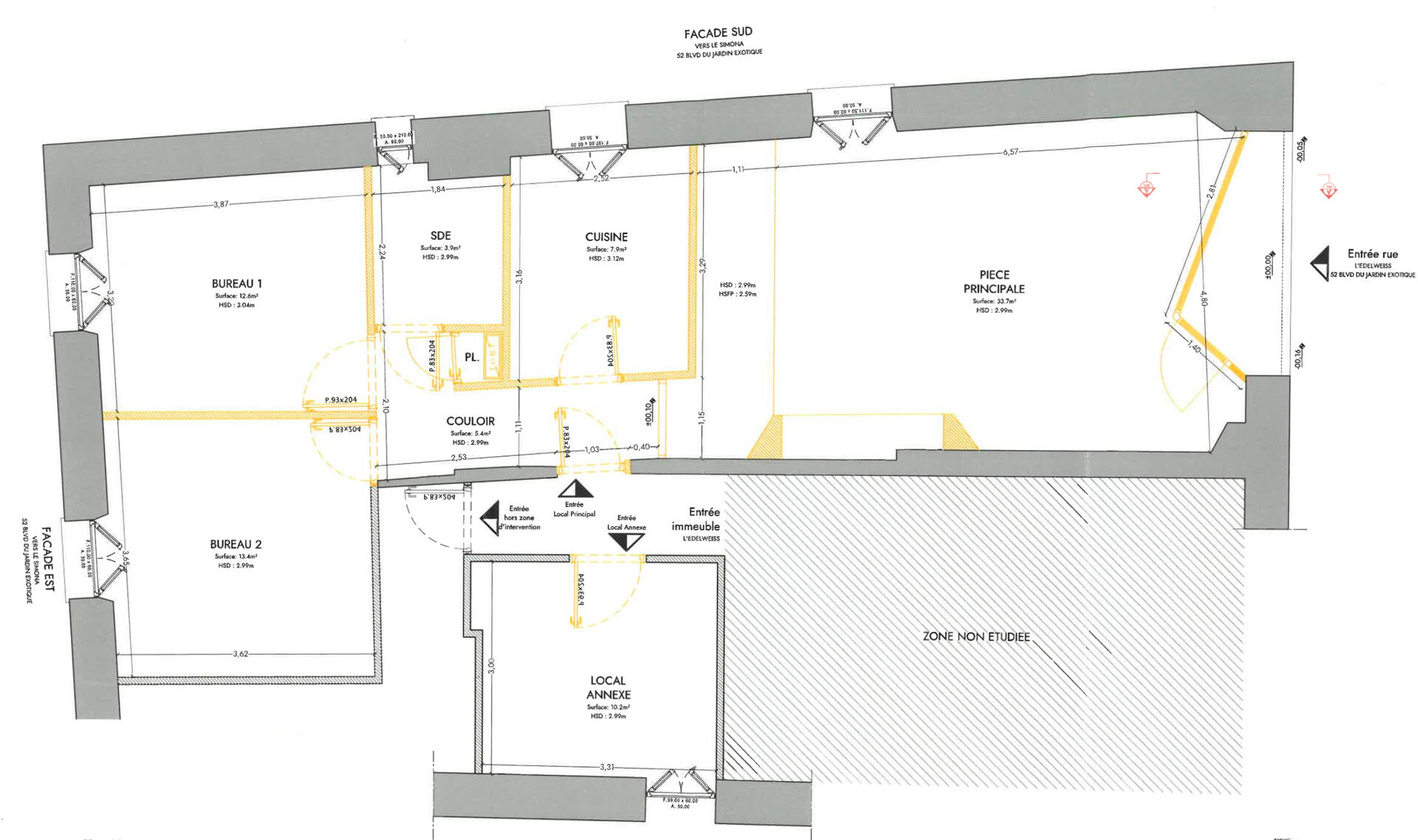
PALAZZO BORGHESE Raro locale quartiere Giardino Esotico – Ideale per uffici o appartamento trilocale
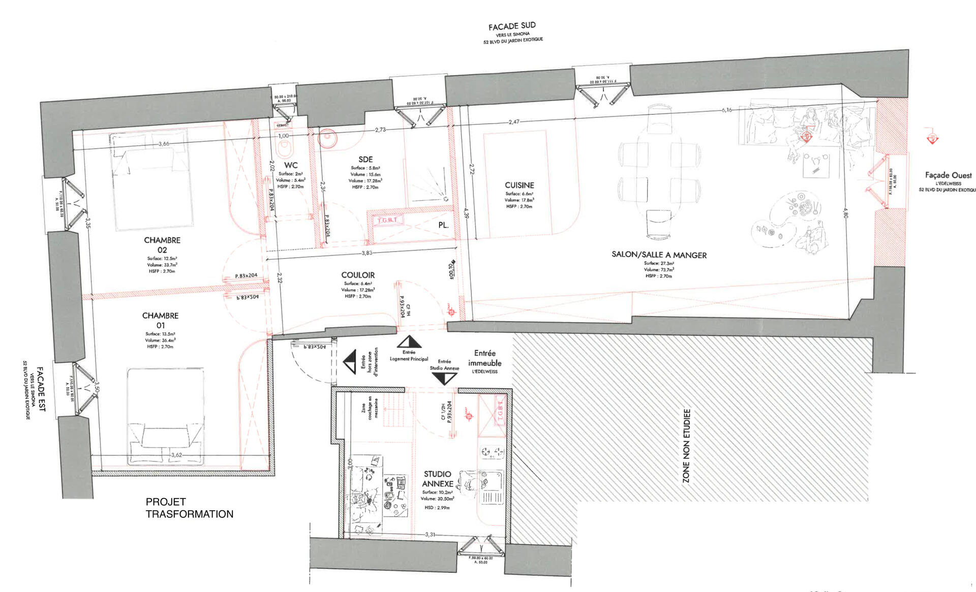
Convertibile locale in un appartamento a 3 stanze
Situata nella popolare zona del Jardin Exotique, apprezzata per la sua tranquillità, questa proprietà beneficia di un ambiente tranquillo pur rimanendo vicina ai servizi e all'accesso a Fontvieille e La Condamine.
Attualmente destinato a essere un locale commerciale, è composto da un doppio ingresso, uno spazio aperto, una cucina separata, un bagno e due camere da letto che possono essere utilizzati come uffici. Una grande cantina completa questa proprietà.
Ideale per un'azienda o per un appartamento di 3 stanze, il progetto di trasformazione è già stato convalidato dal DPUM e il permesso edilizio concesso. Un progetto di facciata residenziale è stato inoltre realizzato e convalidato dall'urbanistica e dall'amministratore del condominio.
Pertanto, solo lavori di ristrutturazione e sviluppo saranno necessari all'acquirente, offrendo un grande potenziale per creare uno spazio unico a tua immagine in un'area privilegiata.
Agenzia : PRIME Estate
26 Avenue de la Costa98000 Monaco
Richiesta informazioni sul prodotto : PE_VILLA EDELWEISS +377 99 90 77 67
Ce document ne fait partie d'aucune offre ou contrat. Toutes mesures, surfaces et distances sont approximatives. Le descriptif et les plans ne sont donnés qu'à titre indicatif et leur exactitude n'est pas garantie. Les photographies ne montrent que certaines parties de la propriété. L'offre est valable sauf en cas de vente, retrait de vente, changement de prix ou d'autres conditions, sans préalable.






