Vendita - MURI IN VENDITA A 10 METRI da Monaco Uffici o centro di bellezza – Professioni liberali
A soli 300 metri dal quartiere Casino Monte Carlo
Uffici o centri di bellezza – Professioni liberali
Beausoleil – immediata zona Monaco
In un edificio di lusso situato a Beausoleil, a pochi passi dal Principato di Monaco, questo nuovo complesso immobiliare offre una rara opportunità per l'istituzione di uffici di alto livello, centri estetici, centri medici o professioni liberali.
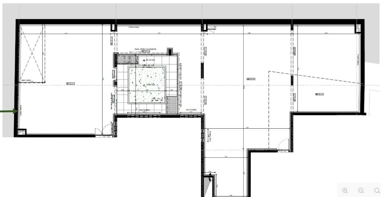
La proprietà si sviluppa su due altopiani distinti, per una superficie totale di 436,46 m², distribuiti come segue:
-
Primo livello: 230,26 m²
-
Secondo livello: 206,20 m²
Un patio centrale di 24,40 m² struttura l'intero e offre una luce naturale apprezzabile, favorendo un ambiente di lavoro qualitativo e rilassante.
I locali vengono consegnati in cemento grezzo, fluidi in sospeso, garantendo totale libertà di disposizione secondo le esigenze specifiche dell'utente o dell'investitore (suddivisione, attrezzature tecniche, standard specifici per l'attività).
Due parcheggi privati completano questa proprietà, un bene essenziale in questa zona ad alta domanda.
📌 Uso ideale :
-
Professioni liberali
-
Centro estetico / benessere
-
Pratica medica o paramedica
-
Uffici di gestione o quartier generale operativo
📍 Posizione strategica : Beausoleil, all'immediato confine del Principato di Monaco, beneficia di un'influenza economica e di un'accessibilità ottimale.
Agenzia : Exclusive Estate Monaco
23 Bd Princesse Charlotte98000 Monaco
Richiesta informazioni sul prodotto : NRF016 +377 97 98 15 49
Ce document ne fait partie d'aucune offre ou contrat. Toutes mesures, surfaces et distances sont approximatives. Le descriptif et les plans ne sont donnés qu'à titre indicatif et leur exactitude n'est pas garantie. Les photographies ne montrent que certaines parties de la propriété. L'offre est valable sauf en cas de vente, retrait de vente, changement de prix ou d'autres conditions, sans préalable.






