Vendita - SPLENDIDO BILOCALE CENTRALE
Il Roqueville è un immobile situato nel cuore del prestigioso quartiere di Monte-Carlo a Monaco, dotato del più grande parco privato del Principato.
Vicino al Carré d’Or, gode di una posizione ideale a pochi passi dal Casinò, dai Giardini del Casinò e dal Café de Paris. Questo quartiere emblematico è rinomato per le sue boutique di lusso, i suoi ristoranti raffinati e il suo stile di vita elegante. Ben collegato e ricco di servizi, Monte-Carlo offre un ambiente di vita privilegiato, che combina comfort, prestigio e un’immediata accessibilità alle principali attrazioni del Principato.
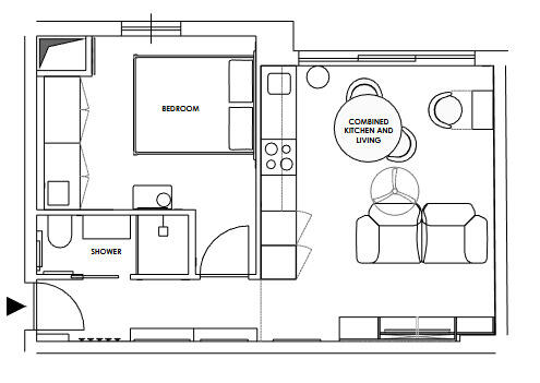
L’appartamento si apre su un ingresso che, sulla sinistra, conduce a un’elegante sala da bagno dotata di WC, lavabo e una moderna doccia all’italiana.
La camera da letto, provvista di armadio a muro, offre uno spazio confortevole e funzionale.
Il soggiorno, luminoso e accogliente, ospita una cucina a vista completamente nuova, creando un ambiente piacevole e perfettamente ottimizzato.
Una ristrutturazione completa valorizza ulteriormente la proprietà: impianti idraulici ed elettrici, attrezzature, falegnameria, finiture… tutto è stato rifatto a nuovo, garantendo un comfort ottimale e un’abitabilità totalmente “chiavi in mano”.
Un appartamento ideale come pied-à-terre, investimento locativo o prima acquisizione in uno dei quartieri più ricercati del Principato di Monaco.
Agenzia : B&C Monaco Properties
13 Boulevard Princesse Charlotte98000 MONACO
Richiesta informazioni sul prodotto : VM-15-25 +33 6 10 12 40 74
Ce document ne fait partie d'aucune offre ou contrat. Toutes mesures, surfaces et distances sont approximatives. Le descriptif et les plans ne sont donnés qu'à titre indicatif et leur exactitude n'est pas garantie. Les photographies ne montrent que certaines parties de la propriété. L'offre est valable sauf en cas de vente, retrait de vente, changement de prix ou d'autres conditions, sans préalable.






