Vendita - Monte Carlo Star - 2/3 Stanze - Carré d'Or
Il Monte-Carlo Star è una residenza di lusso con un servizio di portineria 24 ore su 24, 7 giorni su 7 e un'area piscina coperta. L'edificio ha due ingressi, uno situato negli splendidi giardini del Casinò e un secondo situato a pochi passi dallo Yacht Club.
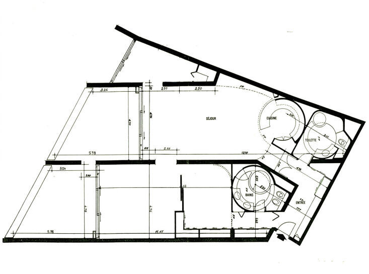
L'appartamento è completamente da ristrutturare, offre volumi molto belli oltre ad una loggia molto bella.
Venduto con posto auto e cantina.
Attualmente composto da un ingresso, un ampio soggiorno che si apre su una loggia, una cucina separata, un ufficio, un bagno con doccia e una spaziosa camera matrimoniale con spogliatoio e bagno.
Agenzia : Monte-Carlo Sotheby's International Realty
Les Arcades du Métropole 2a, avenue de Grande Bretagne98000 Monaco
Richiesta informazioni sul prodotto : Mc.Star/MC2-937 +377 93 25 37 27
Ce document ne fait partie d'aucune offre ou contrat. Toutes mesures, surfaces et distances sont approximatives. Le descriptif et les plans ne sont donnés qu'à titre indicatif et leur exactitude n'est pas garantie. Les photographies ne montrent que certaines parties de la propriété. L'offre est valable sauf en cas de vente, retrait de vente, changement de prix ou d'autres conditions, sans préalable.
La nostra selezione immobiliare

Le Bermuda - Avenue Hector Otto


CARRÉ D’OR - ATTIVITÀ COMMERCIALE VENDITA




Le Seaside Plaza - Avenue des Ligures
