Vente - FONTVIEILLE - BUREAUX ADMINISTRATIFS - LE BOTTICELLI
Bureau en excellent état, lumineux et doté d’une belle hauteur sous plafond, offrant une visibilité exceptionnelle sur la placette du port de Fontvieille dans un immeuble de standing avec conciergerie 24/24.
Ce bureau en excellent état est situé dans un immeuble de standing bénéficiant d’un service de conciergerie disponible 24h/24. Implanté dans un quartier très recherché et calme, à proximité immédiate des commerces, il profite d’une visibilité privilégiée grâce à sa large vitrine donnant directement sur la charmante placette du port de Fontvieille. Cet emplacement lui assure non seulement une belle luminosité et une vue agréable sur le port, mais aussi un passage piéton constant.
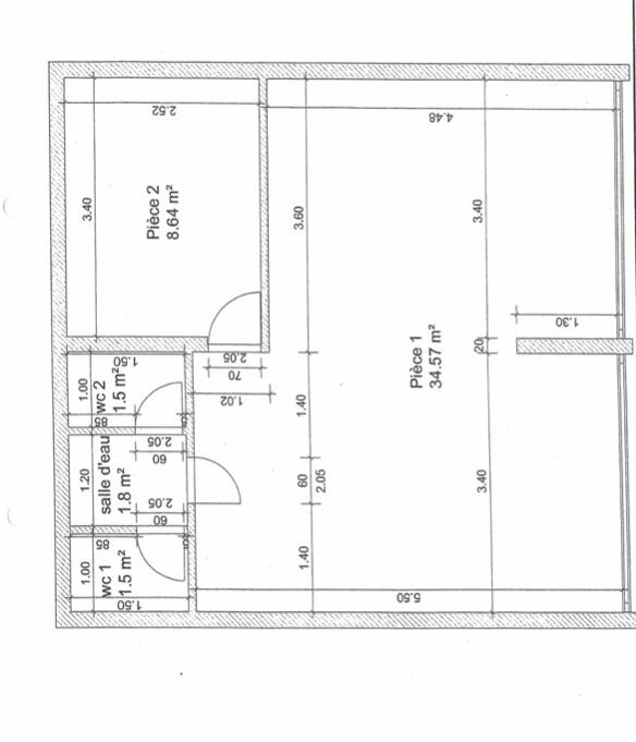
L’espace, qui séduit par sa belle hauteur sous plafond, se compose d’une pièce principale lumineuse et accueillante, prolongée par une salle de réunion. Deux toilettes complètent l’ensemble pour un confort optimal.
Agence : PRIME Estate
26 Avenue de la Costa98000 Monaco
Demande d'informations sur le produit : PE_BUREAUX _LE BOTTICELLI 007 +377 99 90 77 67
Ce document ne fait partie d'aucune offre ou contrat. Toutes mesures, surfaces et distances sont approximatives. Le descriptif et les plans ne sont donnés qu'à titre indicatif et leur exactitude n'est pas garantie. Les photographies ne montrent que certaines parties de la propriété. L'offre est valable sauf en cas de vente, retrait de vente, changement de prix ou d'autres conditions, sans préalable.






