Vente - 2 Pièces avec jolie vue mer - La Radieuse - Larousse
L'immeuble La Radieuse est un immeuble résidentiel construit dans au debut du 20 ème siècle. Idéalement situé au coeur du boulevard d'Italie, cet edifice de style bel époque est a proximité des plages du Larvotto, de nombreux commerces dont le nouveau supermarché et à deux pas du centre de Monte Carlo
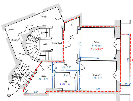
Grand deux pièces dans un immeuble bourgeois très central, quartier La Rousse, composé de:
- une entrée,
- un séjour,
- une chambre,
- une cuisine indépendante équipée,
- une salle de douche et
- un balcon bénéficiant d'une jolie vue mer & ville.
Position idéale à deux pas du centre et près des commerces.
Agence : Agence des Ambassadeurs
1/5, avenue de Grande Bretagne98000 Monaco
Demande d'informations sur le produit : Rad2PV +377 93 50 79 59
Ce document ne fait partie d'aucune offre ou contrat. Toutes mesures, surfaces et distances sont approximatives. Le descriptif et les plans ne sont donnés qu'à titre indicatif et leur exactitude n'est pas garantie. Les photographies ne montrent que certaines parties de la propriété. L'offre est valable sauf en cas de vente, retrait de vente, changement de prix ou d'autres conditions, sans préalable.
Notre sélection immobilière

CARRÉ D’OR - VENTE FONDS DE COMMERCE


2 PIECES ENTIEREMENT RENOVE | LOI 1235


VENTE en VIAGER - LE PARK PALACE - Impasse de la Fontaine
