Vente - BUREAU ADMINISTRATIF À LA VENTE - FONTVIEILLE
Cet charmant espace de bureau, idéalement situé dans le pittoresque quartier de Fontvieille, est maintenant disponible à la vente. Bénéficiant d'une rénovation récente, ce bureau dégage une ambiance chaleureuse et accueillante avec ses élégants planchers en bois et ses grandes fenêtres donnant sur les jardins. Il est situé dans une zone tranquille à Fontvieille, mais à seulement quelques pas de la Marina.
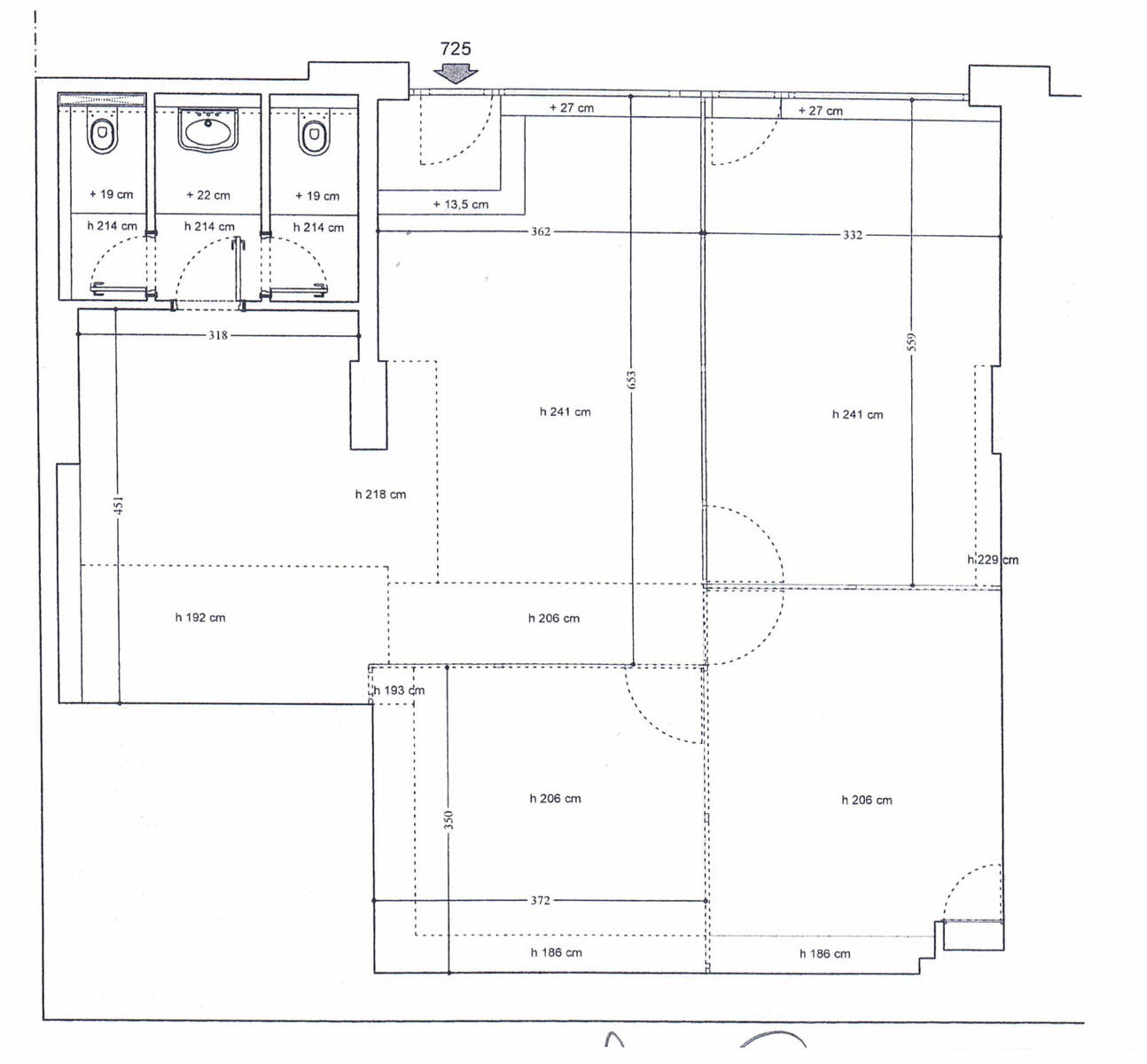
Le spacieux bureau est composé d'une pièce principale, mais est divisé en plusieurs bureaux avec des cloisons vitrées. Il est équipé de 2 toilettes avec lavabos, d'un coin cuisine et de 2 portes d'accès.
Actuellement loué - échéance le 30/09/2025
Agence : Marsan Immobilier Monaco
1, avenue Prince Pierre98000 Monaco
Demande d'informations sur le produit : MIMRAPHBUR +377 93 25 01 01
Ce document ne fait partie d'aucune offre ou contrat. Toutes mesures, surfaces et distances sont approximatives. Le descriptif et les plans ne sont donnés qu'à titre indicatif et leur exactitude n'est pas garantie. Les photographies ne montrent que certaines parties de la propriété. L'offre est valable sauf en cas de vente, retrait de vente, changement de prix ou d'autres conditions, sans préalable.






