Vente - L'Exotique - Nouvelle résidence - Jardin Exotique
L'Exotique est une nouvelle résidence de standing avec des prestations haut de gamme (conciergerie 24/7, un espace spa, piscine et salle de fitness)
Son emplacement jouit d'une vue magnifique surplombant la ville et la mer.
L'appartement est actuellement loué 18 025€ + charges jusqu'au 28 février 2027
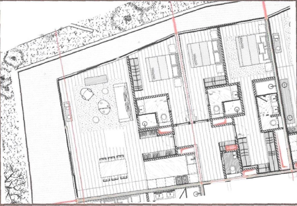
Ce très beau 4 pièces bénéficie d'une agréable terrasse d'angle ainsi que de luxueuses finitions.
Vendu avec 2 emplacements de parking et une cave.
Une entrée, un double séjour salle à manger, une cuisine, une chambre de maître avec salle de douche et dressing, 2 chambres avec salle de douche attenante et une toilette invités.
L'ensemble des pièces sont ouvertes sur une magnifique terrasse.
Agence : Monte-Carlo Sotheby's International Realty
Les Arcades du Métropole 2a, avenue de Grande Bretagne98000 Monaco
Demande d'informations sur le produit : Exotique1/MC2-404 +377 93 25 37 27
Ce document ne fait partie d'aucune offre ou contrat. Toutes mesures, surfaces et distances sont approximatives. Le descriptif et les plans ne sont donnés qu'à titre indicatif et leur exactitude n'est pas garantie. Les photographies ne montrent que certaines parties de la propriété. L'offre est valable sauf en cas de vente, retrait de vente, changement de prix ou d'autres conditions, sans préalable.






