Location - MONTE CARLO SUN - studio avec parking
Situé dans une propriété de luxe, avec concierge et parking privé, dans le quartier « La Rousse », ce studio est un parfait « pied-à-terre » pour un couple ou un célibataire en quête de confort.
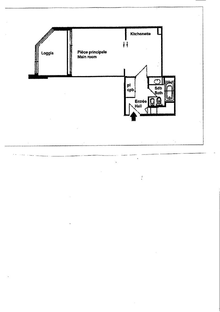
L'appartement est composé de la manière suivante:
entrée avec placard, un espace cuisine équipée, une pièce principale, une salle de bains, une loggia, une cave, un parking.
Agence : Roc Agency
28, rue Comte Felix Gastaldi98000 Monaco
Demande d'informations sur le produit : R1055 +377 93 25 35 20
Ce document ne fait partie d'aucune offre ou contrat. Toutes mesures, surfaces et distances sont approximatives. Le descriptif et les plans ne sont donnés qu'à titre indicatif et leur exactitude n'est pas garantie. Les photographies ne montrent que certaines parties de la propriété. L'offre est valable sauf en cas de vente, retrait de vente, changement de prix ou d'autres conditions, sans préalable.






