Vente - Studio lumineux à vendre aux Ligures
Agréable studio situé au sein d'une résidence de standing, offrant un cadre de vie privilégié avec accès à des équipements de qualité tels qu’un terrain de tennis et une piscine.
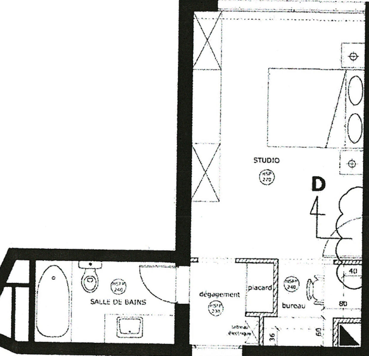
Charmant studio lumineux situé en étage élevé, offrant une vue mer au sein d’une résidence de standing avec tennis et piscine. L’appartement se compose d’une entrée, d’une salle de bains, d’un séjour lumineux, d’une cuisine équipée et d’une terrasse agréable. Une cave et un parking complètent ce bien.
Agence : Harroch Real Estate Monaco
2, rue de la Turbie98000 Monaco
Demande d'informations sur le produit : HHV081025 +377 97 97 31 08
Ce document ne fait partie d'aucune offre ou contrat. Toutes mesures, surfaces et distances sont approximatives. Le descriptif et les plans ne sont donnés qu'à titre indicatif et leur exactitude n'est pas garantie. Les photographies ne montrent que certaines parties de la propriété. L'offre est valable sauf en cas de vente, retrait de vente, changement de prix ou d'autres conditions, sans préalable.
Notre sélection immobilière

CARRÉ D’OR - VENTE FONDS DE COMMERCE


LOCAL / PLATEAU DE 860 m2 + RESERVE + PARKINGS


VENTE en VIAGER - LE PARK PALACE - Impasse de la Fontaine
