Vente - Exclusivité - GRAND IDA - 3P à la vente
Situé dans un quartier calme et résidentiel de la Principauté de Monaco, l’ensemble immobilier « GRAND IDA » est un projet moderne composé de trois bâtiments. Les blocs B et C sont déjà livrés et en majorité occupés par des résidents monégasques (logements domaniaux), tandis que le Bâtiment A, qui accueillera l’appartement proposé, sera livré fin mars 2026.
La résidence offre un cadre de vie paisible, avec un accès direct à de nombreux commerces, notamment ceux situés en bas du bâtiment, ainsi qu’une excellente connexion aux secteurs de la Condamine et de Fontvieille via des ascenseurs publics et des rampes d’escaliers. Situé sur une portion piétonne du Boulevard Rainier III, GRAND IDA garantit à ses résidents confort et tranquillité.
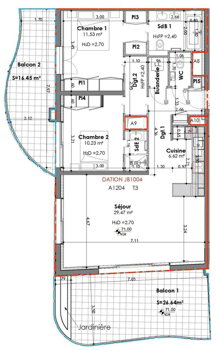
Ce 3 pièces à la vente, situé au 12ᵉ étage du Bâtiment A, se compose d’un séjour/salle à manger ouvrant sur un balcon (exposé Sud), d’une cuisine entièrement équipée, de deux chambres ouvrant sur un balcon (exposé Sud-Ouest), une salle-de-bains, salle de douche, d’une buanderie, d’un toilette indépendant et de nombreux rangements intégrés.
Ce bien est complété par une place de parking située au 3ᵉ sous-sol ainsi qu’une cave au 3ᵉ sous-sol.
Agence : PASTOR IMMOBILIER
27 avenue Princesse Grace Le Formentor98000 Monaco
Demande d'informations sur le produit : Grand Ida 12 +377 97 70 20 70
Ce document ne fait partie d'aucune offre ou contrat. Toutes mesures, surfaces et distances sont approximatives. Le descriptif et les plans ne sont donnés qu'à titre indicatif et leur exactitude n'est pas garantie. Les photographies ne montrent que certaines parties de la propriété. L'offre est valable sauf en cas de vente, retrait de vente, changement de prix ou d'autres conditions, sans préalable.
Notre sélection immobilière

2 PIECES ENTIEREMENT RENOVE | LOI 1235


La Condamine - Villa Lavagna


CARRÉ D’OR - VENTE FONDS DE COMMERCE


LOCAL / PLATEAU DE 860 m2 + RESERVE + PARKINGS
