Vente - Carré d’Or – Le Mirabel - Compact & chic : le penthouse duplex de nouvelle génération
Penthouse d’exception au Mirabel : un duplex entièrement rénové et décoré avec élégance, offrant vue mer, vaste terrasse paysagée et prestations haut de gamme, idéal pour un pied-à-terre ou un investissement locatif clé en main.
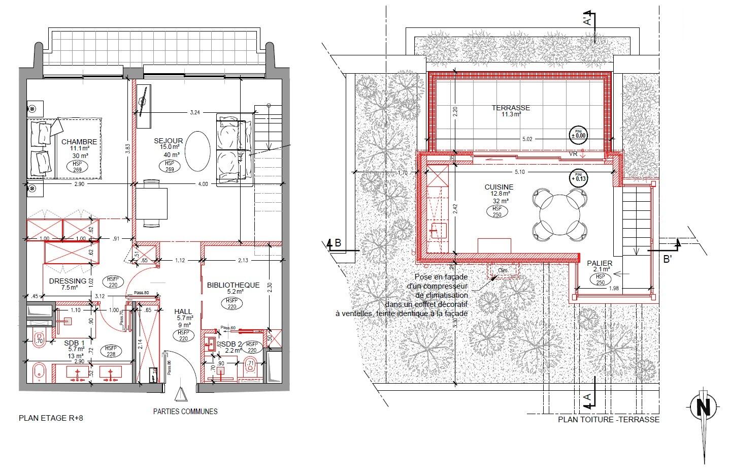
Situé aux deux derniers étages de la prestigieuse résidence "Le Mirabel", ce superbe penthouse entièrement rénové et décoré avec goût est proposé clé en main.
Réparti sur deux niveaux, il offre une atmosphère raffinée alliant luxe, confort et fonctionnalité. Le bien est actuellement configuré en 2 chambres, une des chambre étant aménagée en bureau, idéale pour le télétravail ou les invités.
8ème étage :
Un lumineux séjour exposé Sud-Est avec vue mer & Mareterra
Une chambre principale avec salle de bains et dressing
Une seconde chambre ou bureau
Une salle de douches
Toilettes invités
Un escalier élégant menant à l'étage supérieur
9ème étage :
Une cuisine ouverte entièrement équipée
Un espace repas baigné de lumière grâce à une large baie vitrée
Accès à une terrasse paysagée orientée Est-Sud-Ouest, véritable havre de paix
Une cave et une place de parking de belle dimension 3.5 mètres de large, viennent compléter ce bien rare.
Loué meublé pour une durée d’un an – Loyer mensuel : 16.500 € charges comprises ce qui offre un excellent rendement locatif pour un investisseur.
Agence : John Taylor
20, boulevard des Moulins98000 Monaco
Demande d'informations sur le produit : V1850MC +377 93 50 30 70
Ce document ne fait partie d'aucune offre ou contrat. Toutes mesures, surfaces et distances sont approximatives. Le descriptif et les plans ne sont donnés qu'à titre indicatif et leur exactitude n'est pas garantie. Les photographies ne montrent que certaines parties de la propriété. L'offre est valable sauf en cas de vente, retrait de vente, changement de prix ou d'autres conditions, sans préalable.






