Vente - CARRE D'OR / MONTE CARLO STAR / 2/3 PIECES AVEC TERRASSE
Le Monte-Carlo Star est une résidence de standing avec service de conciergerie continu avec deux entrées dont l'une est coté Jardin du casino et l'autre coté Yacht Club. et un espace piscine intérieur.
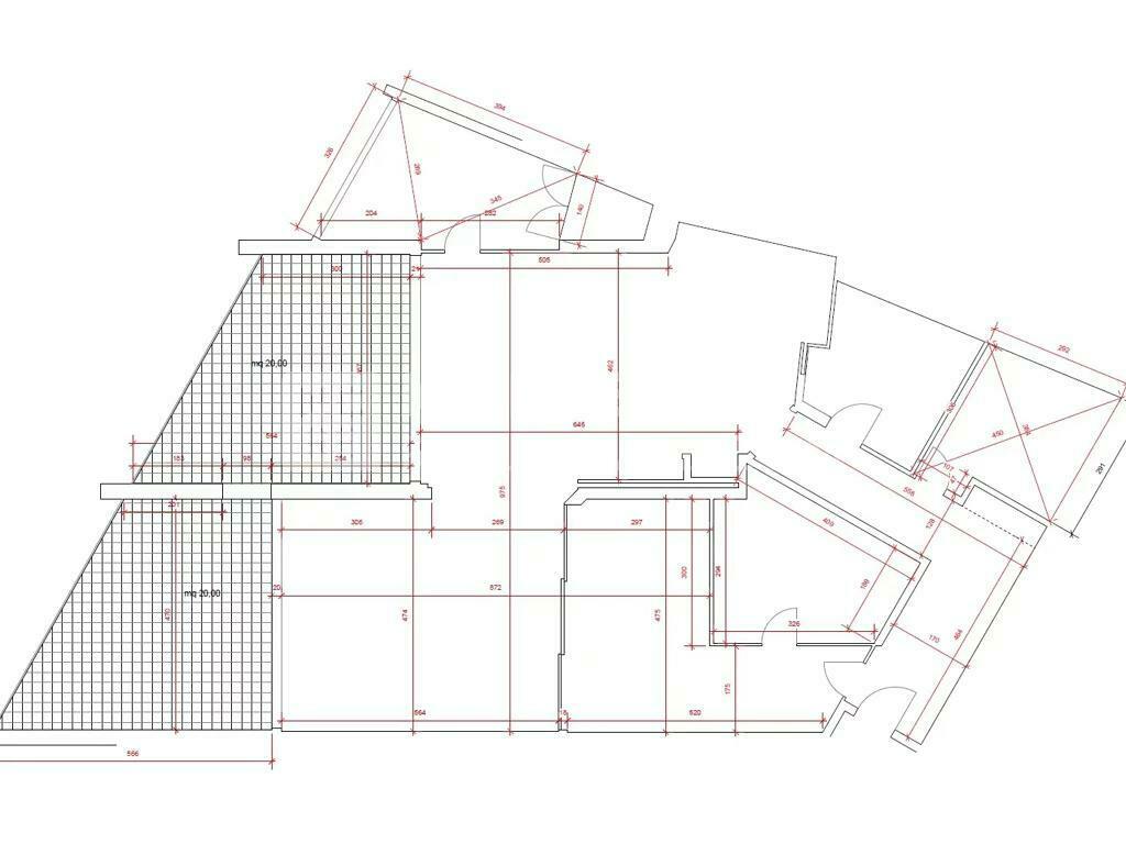
L'appartement a une belle surface habitable et les terrasses sont tres larges. L'appartement se compose d'une entrée, salon/ salle à manger, une chambre, 2 salles de bains et une cuisine indépendante.
A RENOVER ENTIEREMENT
1 emplacement de parking et 1 cave compris dans le prix
Agence : Coldwell Banker Etic Realty
15, boulevard Princesse Charlotte98000 Monaco
Demande d'informations sur le produit : VMC-MCS-2025 +377 93 50 57 94
Ce document ne fait partie d'aucune offre ou contrat. Toutes mesures, surfaces et distances sont approximatives. Le descriptif et les plans ne sont donnés qu'à titre indicatif et leur exactitude n'est pas garantie. Les photographies ne montrent que certaines parties de la propriété. L'offre est valable sauf en cas de vente, retrait de vente, changement de prix ou d'autres conditions, sans préalable.
Notre sélection immobilière

Le Bermuda - Avenue Hector Otto


CARRÉ D’OR - VENTE FONDS DE COMMERCE


2 PIECES ENTIEREMENT RENOVE | LOI 1235


Le Patio Palace - Avenue Hector Otto
