Vente - LE BOTTICELLI - LOCAL/BUREAU
Beau local ou bureau à vendre situé dans l’immeuble « Le Botticelli ».
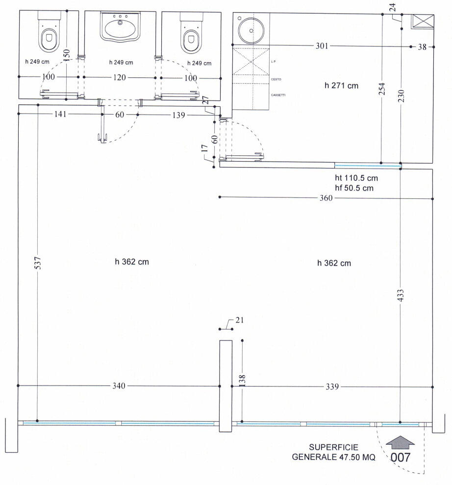
L’Agence vous propose à la vente un local ou bureau à vendre situé dans l’immeuble « Le Botticelli ».
D’une superficie de 49m2, il se compose d’une pièce principale, d’une salle de réunion et de deux toilettes.
Actuellement loué au tarif de 6 050 € TTC par mois, ce bien bénéficie d'un bail en cours jusqu'au 30 octobre 2025.
Agence : Agence Nouvelle
16 Av. de la Costa98000 Monaco
Demande d'informations sur le produit : SB/LB/007 +377 97 97 31 60
Ce document ne fait partie d'aucune offre ou contrat. Toutes mesures, surfaces et distances sont approximatives. Le descriptif et les plans ne sont donnés qu'à titre indicatif et leur exactitude n'est pas garantie. Les photographies ne montrent que certaines parties de la propriété. L'offre est valable sauf en cas de vente, retrait de vente, changement de prix ou d'autres conditions, sans préalable.






