Vente - GRAND DUPLEX - STELLA
Très grand duplex de deux pièces principales avec jardin privatif situé dans l'emblématique quartier de la condamine.
Dans une résidence de haut standing construit en 2018, nous vous proposons à la vente un spacieux 2 pièces en duplex, avec jardin privatif.
L'appartement est composé comme suit :
Niveau inférieur : Hall d'entrée, toilettes invités, cuisine entièrement équipée et ouverte sur le séjour, terrasse avec très beau jardin privatif arboré de plantes tropicales.
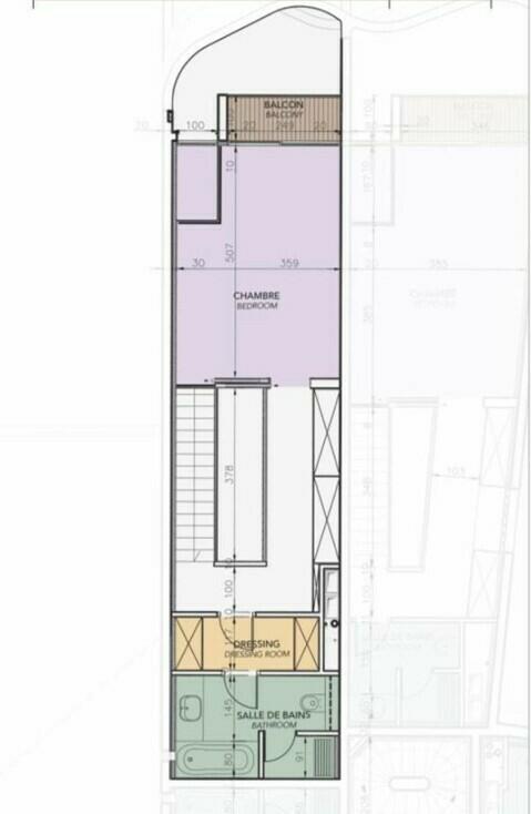
Niveau supérieur : Une grande chambre de 18.20m² donnant accès à un balcon, dressing et salle de bains
Un emplacement de parking complète le bien.
Agence : AAA Monaco Town & Sea Immobilier
8 boulevard des Moulins98000 Monaco
Demande d'informations sur le produit : VA-03122024ST +377 97 77 07 77
Ce document ne fait partie d'aucune offre ou contrat. Toutes mesures, surfaces et distances sont approximatives. Le descriptif et les plans ne sont donnés qu'à titre indicatif et leur exactitude n'est pas garantie. Les photographies ne montrent que certaines parties de la propriété. L'offre est valable sauf en cas de vente, retrait de vente, changement de prix ou d'autres conditions, sans préalable.
Notre sélection immobilière

LOCAL / PLATEAU DE 860 m2 + RESERVE + PARKINGS


Le Bermuda - Avenue Hector Otto


CARRÉ D’OR - VENTE FONDS DE COMMERCE


2 PIECES ENTIEREMENT RENOVE | LOI 1235
