Vente - LOCAL COMMERCIAL/BUREAU A VENDRE - FONTVIEILLE
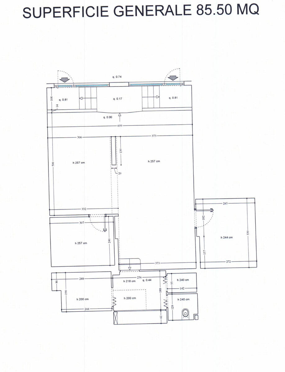
Ce bien commercial est situé dans le bâtiment Michelangelo à Fontvieille. Il dispose d'une grande vitrine lumineuse avec un accès double, offrant une excellente luminosité naturelle. La disposition comprend une grande pièce principale, deux salles latérales à l'arrière, une salle d'utilité, une salle de stockage, des toilettes et un grand placard de rangement. Actuellement, l'activité commerciale est un salon de coiffure jusqu'au 30/09/2026.
Agence : Marsan Immobilier Monaco
1, avenue Prince Pierre98000 Monaco
Demande d'informations sur le produit : MIMMICH70 +377 93 25 01 01
Ce document ne fait partie d'aucune offre ou contrat. Toutes mesures, surfaces et distances sont approximatives. Le descriptif et les plans ne sont donnés qu'à titre indicatif et leur exactitude n'est pas garantie. Les photographies ne montrent que certaines parties de la propriété. L'offre est valable sauf en cas de vente, retrait de vente, changement de prix ou d'autres conditions, sans préalable.






